浙江普瑞泰环境设备有限公司

烟台毛细管网新风除湿设备

烟台毛细管网新风除湿设备

产品详情

特别针对毛细管网新风系统进行除湿,用简单的方式,解决毛 细管网系统结露的情况,且可引进新鲜空气,使毛细管网系统真正 发挥其节能,静音的特点。免除结露的后顾之忧。

湿度控制智能化,即可在开冷辐射系统时除湿,又可在不开冷辐射 系统时除湿, 化设计,根据毛细管网的特点,特别针对舒适度 ,防结露,安装位置,高度,出风含湿量,温度等参数,进行化 设计,充分满足客户要求。

建议G1初效滤网 可3-6个月清洗一次 G3初效滤网6个月更换


控制开关

  • 全触屏显示,操作控制更便捷。
  • a:室内二氧化碳传感器、新风温度、 送风湿度、室内温度、室内湿度多种 传感器组合,更方便查询空气品质。
  • b:智能:全系列标配485通讯接 口,方便联网控制。
  • c:定时提醒过滤网更改
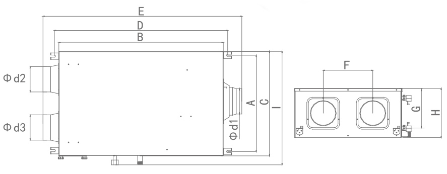
产品尺寸
型号 A B C D E F G H I Φd1 Φd2 Φd3
DMXF-30 539 896 585 944 1083 270 223 275 654 150 150 150
DMXF-50 688 1019 654.5 675 1182 334 409 409 770 200 200 200
产品参数
型号 电源 风量(m3/h) 功率(W) 除湿量(L/D) 静压(Pa) 可引入新风量(m3/h) 噪音dB(A)
DMXF-30 220V/50Hz 300 500 110 80 150 45
DXXF-50 220V/50Hz 500 1000 160 120 200 50